Verkocht:Hoofdstraat 10, 7851 AA Zweeloo - Foto
Verkocht
+50

Hoofdstraat 10 7851 AA Zweeloo

  • Woonhuis
  • 4 kamers
  • 3 slaapkamers
  • 1 badkamers
  • Bouwjaar 1945
  • 995 m² perceeloppervlakte
  • 136 m² gebruiksoppervlakte
  • B Energielabel B

Beschrijving

Droomplek aan de Hoofdstraat: Vrijstaand wonen midden in het dorp
Wil jij elke dag het gevoel hebben dat je thuiskomt in een oase van rust? Dan is Hoofdstraat 10 in het gezellige Zweeloo echt wat voor jou! Dit vrijstaande woonhuis, gebouwd in 1945, ademt geschiedenis, karakter en ruimte. Of je nu met het hele gezin op zoek bent naar meer plek, of als doorstromer verlangt naar dat droomhuis waar je verder kunt groeien—hier valt alles op z’n plek.

Karaktervol wonen mét uitzicht
Het eerste wat opvalt als je aan komt rijden, is de imposante monumentale eik aan de voorkant. Die boom ziet er niet alleen prachtig uit, hij draagt bij aan het karakter van deze woning. De ligging in de kom van het gezellige dorp zorgt ervoor dat je rustig woont, maar toch alles binnen handbereik hebt.
Wat dit huis echt bijzonder maakt: de achtertuin grenst direct aan het hertenkamp! Dus vanuit de tuin kijk je vrij uit over het groen, terwijl de hertjes – je nieuwe buren – rustig voorbij wandelen. Dat blijft speciaal, elke dag opnieuw.

Ruimtezoeker? Hier kun je het vinden!
Met een perceel van maar liefst 995 m² rond de hele woning, kom je gegarandeerd nooit ruimte tekort. Of je nu groene vingers hebt en zelf wilt moestuinieren, of liever een trampoline voor de kinderen plaatst, alles kan hier. De tuin ligt rondom, dus altijd wel een plekje in de zon of schaduw. Barbecue-en met vrienden, spelen met de kids of gewoon heerlijk ontspannen: hier kan het allemaal.

(Authentieke) details & moderne mogelijkheden
De woning zelf is gebouwd in 1945: robuust, solide en tegelijk sfeervol. Je merkt meteen die authentieke uitstraling, maar ook het comfort van nu. Bij binnenkomst ervaar je direct de lichte, open sfeer. De woonkamer is ruim opgezet en biedt alle mogelijkheden om je eigen draai te geven aan de inrichting. Het energielabel B doet vermoeden dat er is nagedacht over comfort en duurzaamheid. Dankzij de kunststof kozijnen met HR++ glas en de 16 zonnepanelen woon je hier energiezuinig en comfortabel. Aan de achterzijde bevindt zich een aangebouwd deel dat, hoewel gedateerd en niet geïsoleerd, mogelijkheden biedt voor wie zelf nog iets wil toevoegen: een atelier, kantoor, bijkeuken of misschien wel de gedroomde speelkamer voor de kinderen? Mogelijkheden te over!

Wonen in Zweeloo: dorpse gezelligheid en volop natuur
En dan de omgeving… Je woont hier in het hart van Zweeloo: een knus dorp met veel karakter, enkele straatjes en vriendelijke buren. Op loopafstand vind je de supermarkt, basisscholen en sportverenigingen, maar ook genoeg plekken waar je echt kunt genieten van de rust. ’s Avonds een wandelingetje langs de herten, kinderen veilig buiten laten spelen of een rondje hardlopen door het groen – wat wil je nog meer?
Kortom, Hoofdstraat 10 is zo’n plek waar iedereen zich direct thuis voelt. Een karakteristiek vrijstaand huis op een riant perceel, sfeervol gelegen aan het hertenkamp – dat zie je niet vaak! Krijg jij al kriebels om te verhuizen? Bel of mail gerust, en wie weet staan de hertjes jou straks iedere ochtend gedag te zeggen.

INDELING
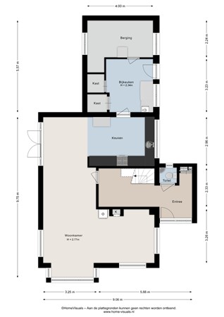
Begane grond: hal/entree, toilet, luik naar ruime kelder, woonkamer met half open keuken, bijkeuken en berging.
Verdieping: overloop, badkamer, drie slaapkamers.
Tweede verdieping: bereikbaar met losse trap: ruime zolderruimte

PRAKTISCHE INFO OP EEN RIJ
- Energielabel B
- Kunststof kozijnen met HR++ glas
- voorzien van 16 zonnepanelen
- Verwarming middels een nieuwe HR cv-ketel (2025)
- Monumentale eik aan de voorzijde
- Perceeloppervlakte: 995 m²
- Vrijstaand, met veel privacy
- Aan achterzijde grenzend aan het hertenkamp
- Gelegen in het hart van het sfeervolle dorp Zweeloo

Kaart

Kenmerken

Overdracht

Referentienummer
00062
Vraagprijs
€ 499.500,- k.k.
Elektra
€ 25,-
Gas
€ 100,-
Water
€ 29,-
Status
Verkocht
Aanvaarding
In overleg
Aangeboden sinds
Dinsdag 25 november 2025
Laatste wijziging
Maandag 5 januari 2026

Bouw

Type object
Woonhuis, eengezinswoning, vrijstaande woning
Soort bouw
Bestaande bouw
Bouwperiode
1945
Dakbedekking
Dakpannen
Type dak
Zadeldak
Isolatievormen
Dakisolatie
HR-glas
Muurisolatie

Oppervlaktes en inhoud

Perceeloppervlakte
995 m²
Woonoppervlakte
136 m²
Inhoud
595 m³
Oppervlakte overige inpandige ruimten
40 m²
Oppervlakte externe bergruimte
14 m²

Indeling

Aantal bouwlagen
3 (en 1 kelder)
Aantal kamers
4 (waarvan 3 slaapkamers)
Aantal badkamers
1 (en 1 apart toilet)

Locatie

Ligging
Beschutte ligging

Tuin

Type
Tuin rondom
Hoofdtuin
Ja
Oriëntering
Zuid-west
Heeft een achterom
Ja
Staat
Prachtig aangelegd

Energieverbruik

Energielabel
B

CV ketel

CV ketel
Nefit
Warmtebron
Gas
Bouwjaar
2025
Combiketel
Ja
Eigendom
Eigendom

Uitrusting

Aantal parkeerplaatsen
3
Warm water
CV-ketel
Verwarmingssysteem
Centrale verwarming
Houtkachel
Ventilatie methode
Natuurlijke ventilatie
Keukenvoorzieningen
Inbouwapparatuur
Badkamervoorzieningen
Inloopdouche
Toilet
Wastafelmeubel
Heeft een rookkanaal
Ja
Tuin aanwezig
Ja
Beschikt over een internetverbinding
Ja
Heeft schuur/berging
Ja
Heeft een dakraam
Ja
Heeft een schuifpui
Ja
Heeft zonnepanelen
Ja

Kadastrale gegevens

Kadastrale aanduiding
Zweeloo G 2040
Perceeloppervlakte
710 m²
Omvang
Geheel perceel
Eigendomsituatie
Eigen grond
Kadastrale aanduiding
Coevorden G 3221
Perceeloppervlakte
285 m²
Omvang
Geheel perceel
Eigendomsituatie
Eigen grond

Brochure(s) en overige bijlagen

Hoofdstraat 10, 7851 AA ZWEELOO (1) Download