Onder bod:Wilhelminastraat 10, 7782 RW De Krim - Foto
Onder bod
+48

Wilhelminastraat 10 7782 RW De Krim € 395.000,- k.k.

  • Woonhuis
  • 4 kamers
  • 3 slaapkamers
  • 1 badkamers
  • Bouwjaar 1948
  • 465 m² perceeloppervlakte
  • 123 m² gebruiksoppervlakte
  • E Energielabel E

Beschrijving

Charmante vrijstaande woning met karakter, privacy en veel ruimte

Ben je op zoek naar een sfeervolle woning met een warme uitstraling, gelegen op een rustige locatie? Deze vrijstaande woning uit 1948 combineert karakter, comfort en een praktische indeling – ideaal voor gezinnen, thuiswerkers of iedereen die graag vrij woont.

Gelegen op een hoekperceel in een rustige woonstraat, met een fraai aangelegde tuin aan de zij- en achterkant. Hier geniet je volop van rust en privacy. De woning beschikt over een ruime oprit met carport en een mooie terrasoverkapping, perfect voor het buitenleven.

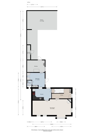
Indeling:
Begane grond:
- Entree/hal met meterkast en trapopgang
- Lichte woonkamer met massief houten vloer en sfeervolle houtkachel
- Ruime woonkeuken met toegang tot de kelder
- Bijkeuken en separaat toilet
- Berging met extra bergzolder

Eerste verdieping:
- Overloop met apart toilet
- Drie slaapkamers, geschikt voor gezin, kantoor of hobbyruimte
- Royale badkamer met ligbad, douchehoek en wastafelmeubel
- Bergzolder bereikbaar via vlizotrap

Deze woning heeft een landelijke uitstraling en biedt tegelijk veel praktische ruimte en comfort. De combinatie van sfeer, indeling en ligging maakt dit een unieke kans voor wie op zoek is naar een fijne, karaktervolle woning in een rustige omgeving.

De Krim is een actief dorp waar altijd wel iets te doen is. Met een breed scala aan voorzieningen, zoals een supermarkt voor je dagelijkse boodschappen, een bakkerij, een kapsalon, Multifunctionele Accommodatie (MFA), een basisschool en een gezellig zwembad, biedt het dorp alles wat je nodig hebt voor een prettig en actief leven. Daarnaast zijn er verschillende particuliere initiatieven die de gemeenschap versterken en zorgen voor een hechte sfeer. Of het nu gaat om lokale evenementen of andere gezamenlijke activiteiten, De Krim biedt een warm en uitnodigend thuis voor jong en oud. Het dorp combineert de rust van het platteland met de gemakken van een actieve gemeenschap.

Kom langs en ervaar het zelf – deze woning voelt direct als thuis!

Kaart

Kenmerken

Overdracht

Referentienummer
00060
Vraagprijs
€ 395.000,- k.k.
Elektra
€ 45,-
Gas
€ 45,-
Status
Onder bod
Aanvaarding
In overleg
Aangeboden sinds
Vrijdag 11 juli 2025
Laatste wijziging
Vrijdag 21 november 2025

Bouw

Type object
Woonhuis, eengezinswoning, vrijstaande woning
Soort bouw
Bestaande bouw
Bouwperiode
1948
Dakbedekking
Dakpannen
Type dak
Zadeldak
Isolatievormen
Grotendeels dubbel glas
Muurisolatie
Spouwmuren
Voorzetramen

Oppervlaktes en inhoud

Perceeloppervlakte
465 m²
Woonoppervlakte
123 m²
Woonkameroppervlakte
27,07 m²
Keukenoppervlakte
10,74 m²
Inhoud
571 m³
Oppervlakte overige inpandige ruimten
24 m²
Oppervlakte gebouwgebonden buitenruimte
40 m²

Indeling

Aantal bouwlagen
3 (en 1 kelder)
Aantal kamers
4 (waarvan 3 slaapkamers)
Aantal badkamers
1 (en 2 aparte toiletten)

Locatie

Ligging
Aan rustige weg
Beschutte ligging
In woonwijk
Nabij school

Tuin

Type
Zijtuin
Hoofdtuin
Ja
Oriëntering
Noord-oost
Heeft een achterom
Ja
Staat
Normaal

Energieverbruik

Energielabel
E

CV ketel

CV ketel
Intergas
Warmtebron
Gas
Bouwjaar
2013
Combiketel
Ja
Eigendom
Eigendom

Uitrusting

Aantal parkeerplaatsen
2
Aantal overdekte parkeerplaatsen
1
Warm water
CV-ketel
Verwarmingssysteem
Centrale verwarming
Houtkachel
Ventilatie methode
Natuurlijke ventilatie
Keukenvoorzieningen
Inbouwapparatuur
Badkamervoorzieningen
Douche
Wastafelmeubel
Heeft een rookkanaal
Ja
Tuin aanwezig
Ja
Beschikt over een internetverbinding
Ja

Kadastrale gegevens

Kadastrale aanduiding
Gramsbergen I 694
Perceeloppervlakte
465 m²
Omvang
Geheel perceel
Eigendomsituatie
Eigen grond

Brochure(s) en overige bijlagen

Wilhelminastraat 10, 7782 RW DE KRIM (1) Download